Réhabilitation totale d'un appartement à Paris 18ème

 

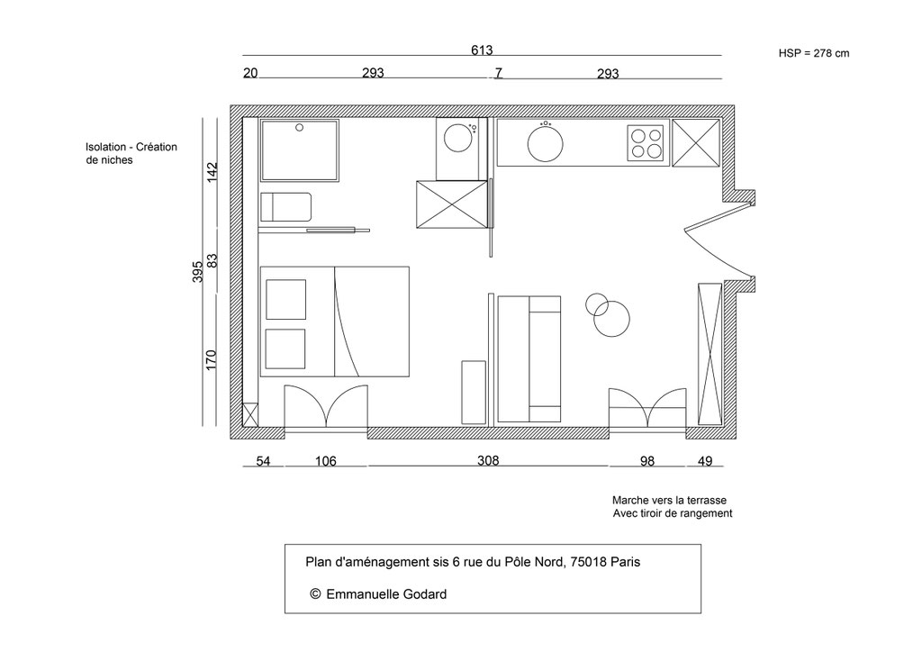
Quand il ne reste rien, tout est à inventer ! Dans cet appartement de 25 m2, même le plancher d'origine avait été enlevé. Restaient 4 murs.

Terrain de jeux idéal pour tout décorateur !

J'ai donc repensé l'aménagement complet de ce petit deux pièces en intégrant une cuisine, un salon, une chambre et une salle de bain attenante. 

 

 Matériaux nobles, confort et douceur étaient les maîtres mots. 

 

Aménagement de l'espace

 

 

 EN COURS D'ECRITURE !

 

 

Les idées Déco

 

 

 

 

 

 

avant